Scroll Top

Viale Dante 29

Donizetti 53
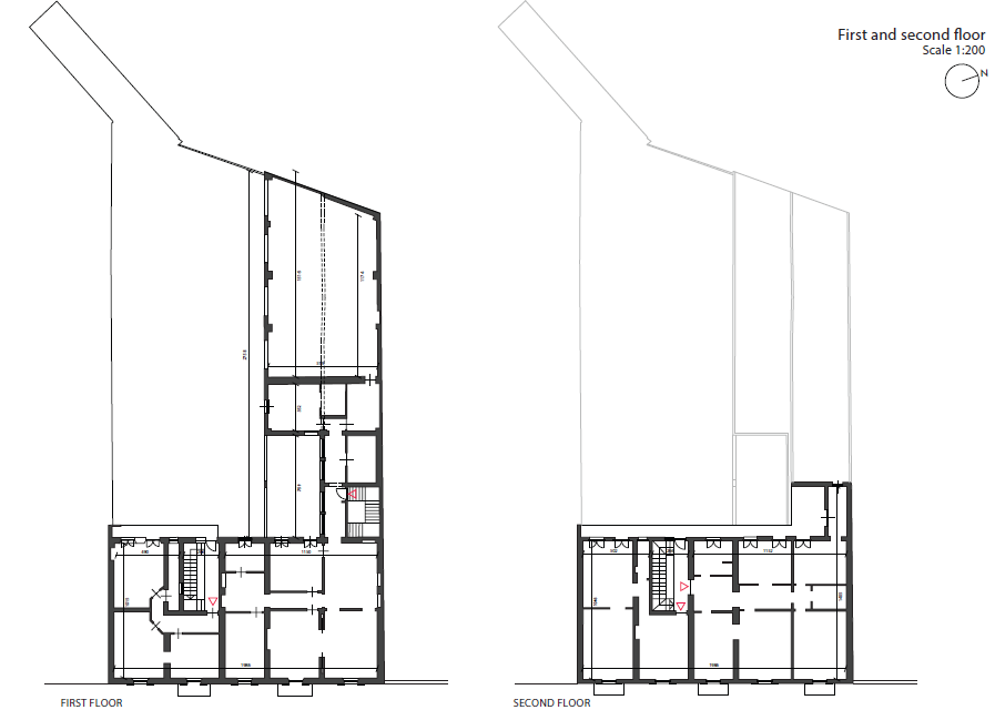
VİALE DANTE 29
Project Architect: MB MARCO BOZZOLA ARCHITETTI.